Residencial Ilhas Gregas - Itupeva, SP | Lançamento da Acoi Construtora
Lançamento Residencial Ilhas Gregas Itupeva

Residencial Ilhas Gregas Itupeva

Sucesso de Vendas


2 e 3 dorms.
+Suíte


57 a
71 m²


1 ou 2
Vagas



Elevador

Saiba mais

Sucesso de Vendas
Residencial Ilhas Gregas Itupeva

Apartamentos de 57m² até 71m²

O RESIDENCIAL

O Residencial Ilhas Gregas Itupeva é um empreendimento de destaque, com 32.990 m² de construção divididos em 6 torres, oferecendo 312 apartamentos em um cenário privilegiado pela beleza natural da Serra do Japi. Além disso, possui 11.602 m² de área verde de preservação, criando um ambiente único.

Este condomínio vertical proporciona conforto e lazer em meio à natureza, a poucos minutos do centro de Itupeva. Suas instalações incluem piscina com prainha, quadra de esportes na areia, churrasqueiras, playground, salão de festas, jogos, TV, academia, espaço pet e até infraestrutura para um mini mercado. Vagas privadas para visitantes e prestadores de serviço, portaria com segurança e 1 ou 2 vagas privadas para cada apartamento garantem comodidade.

Os apartamentos, com 2 ou 3 dormitórios, destacam-se por seu design aberto, ampla varanda gourmet preparada para churrasqueira elétrica ou a gás e o conforto acolhedor. Todos os apartamentos foram projetados para receber muita luz natural durante o dia e desfrutar de vistas panorâmicas da Serra do Japi ou da mata e nascente. Eles também oferecem comodidades como gás encanado e preparação para ar condicionado.

Para maior conveniência, há a opção de adquirir vagas extras de garagem durante a compra do apartamento. Um local que combina harmoniosamente natureza e comodidades modernas para uma vida equilibrada.

APARTAMENTOS

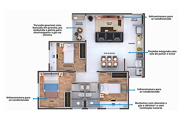
Uma cozinha integrada às áreas de estar e jantar, infraestrutura para ar-condicionado, revestimento de piso em áreas-chave como banheiro, cozinha e lavanderia, além de uma área gourmet equipada com pia e bancada de granito. Opção de ampliação da sala através da integração com um terceiro quarto.

Apartamentos de 2 dormitórios (57 m²):

  • 2 Dormitórios com suíte
  • 2 Banheiros
  • Cozinha integrada
  • 1 Vaga de estacionamento
  • 57 m²
  • Varanda Gourmet
  • Infra para Ar Condicionado
  • Porcelanato nas áreas molhadas

Apartamentos de 3 dormitórios (71 m²):

  • 3 Dormitórios com suíte
  • 2 Banheiros
  • Cozinha integrada
  • 2 Vagas de estacionamento
  • 71 m²
  • Varanda Gourmet
  • Infra para Ar Condicionado
  • Porcelanato nas áreas molhadas

ÁREA DE LAZER COMPLETA E EQUIPADA

A estrutura do Residencial Ilhas Gregas Itupeva é abrangente, oferecendo uma gama completa de comodidades, incluindo piscina, quadra de esportes na areia (para Beach Tennis, Futevôlei e Vôlei de Areia), salão de festas, churrasqueiras, academia, playground e espaço pet. Criamos espaços cuidadosamente projetados para atender a todas as faixas etárias, proporcionando a todos a oportunidade de desfrutar de momentos memoráveis, com a sensação de férias durante todo o ano. Oferecemos todo o lazer que você e sua família merecem, com a conveniência que o residencial proporciona.

  • Piscina
  • Prainha
  • Churrasqueira
  • Academia
  • Plaground
  • Banco de Areia
  • Salão de Festas
  • Sala de TV
  • Salâo de Jogos
  • Jogos
  • Quadra de Areia iluminada
  • Espaço Pet

TECNOLOGIA A FAVOR DA SUSTENTABILIDADE

  • Energia solar fotovoltaica na portaria e salão de festas
  • Infraestrutura para carregadores de carro elétrico
  • Mais de 35% da área verde do terreno preservada (11.602,47m²)
  • Iluminação com sensores de presença nas áreas comuns
  • Medidores de água individuais
  • Reutilização de águas pluviais para os jardins da piscina e das churrasqueiras.
  • Coleta seletiva de lixo.
  • Sistema EcoFlush para economia de água

Realize o Seu Cadastro e Solicite Mais Informações e Horários de Agenda para a Visita.
Fale com a Fiveh Soluções Imobiliárias !!! (11) 4492-7939 / (11) 9 3055-8033 (WhatsApp).

Condomínio completo e pertinho de tudo que você precisa.
Conveniência e um belo visual: a harmonia perfeita entre utilidade e conforto.

PROMOÇÃO DE APARTAMENTOS

A partir de
R$
411.000,00
* Sujeito a Reajuste sem Aviso Prévio

  • Entrada Facilitada
  • Compra Direto com a Construtora
  • Use seu FGTS
  • Lazer e conforto para você e sua família

Para saber mais e participar da Promoção:

Cadastre-se

PLANTAS

CONTATO

Cadastro promoção Agendamento de visita Saiba mais
através de um dos canais abaixo:

Lançamento Residencial Ilhas Gregas Itupeva

Five House Imoveis

CRECI 036237-J

fivehouse.imoveis@gmail.com


Residencial Ilhas Gregas Itupeva:

Rod. Vice Pref. Hermenegildo Tonoli, 495
Itupeva - SP

Chegue com Waze - Lançamento Residencial Ilhas Gregas Itupeva


CONTATO

Fale no WhatsApp

 

Fale no WhatsApp